Appartamento Ristrutturato in Via Terrasanta – Palermo

In vendita
Appartamento
Palermo (Notarbartolo)
345.000 €
Descrizione
A pochi passi da Villa Trabia, Teatro Golden e Stazione Notarbartolo

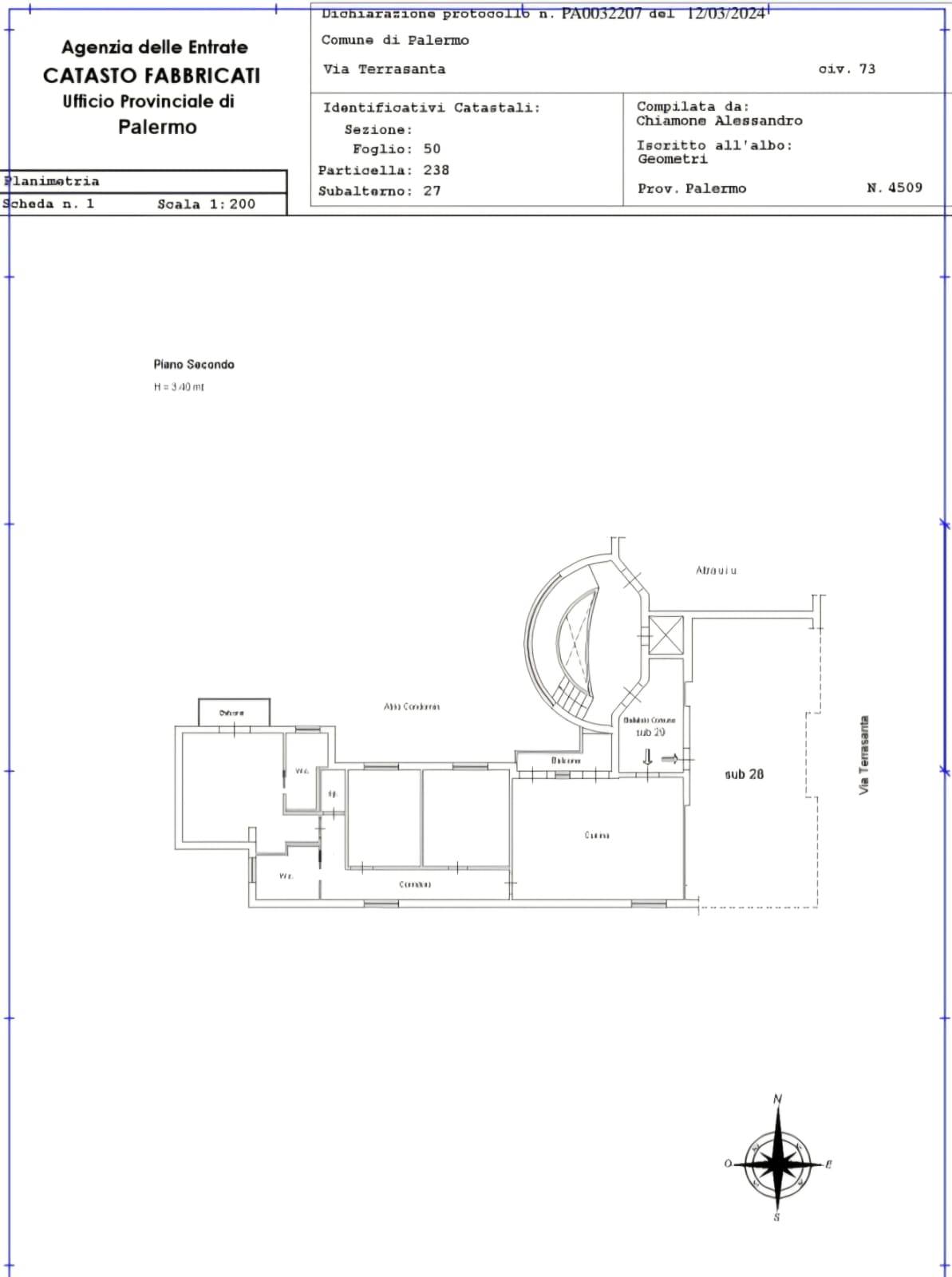
In Via Terrasanta, una delle zone più centrali e servite di Palermo, proponiamo in vendita un appartamento totalmente ristrutturato nel 2023, situato al secondo piano di un elegante stabile dotato di ascensore, proprio di fronte al Teatro Golden e accanto a Villa Trabia.

Superficie interna ben distribuita:

Ingresso su piccolo pianerottolo condiviso

Cucina-soggiorno openspace con accesso a balcone parzialmente verandato (uso lavanderia)

Tre comode camere da letto

Due bagni moderni

Secondo balcone

Caratteristiche principali:

Ristrutturato nel 2023: impianti nuovi, infissi in ottime condizioni

Pavimentazione in parquet e gres porcellanato

Luminoso e ben rifinito, pronto da abitare

Zona servita e strategica:
La via Terrasanta è tra le più richieste a Palermo:

Collegamenti eccellenti con mezzi pubblici

A pochi minuti dal centro storico e da Via Libertà

Negozi, supermercati, scuole, farmacie e ogni servizio a portata di mano

A due passi dal Parco di Villa Trabia, perfetto per famiglie e amanti del verde

Posizione ideale sia per residenza principale che per investimento data la vicinanza e la facilità di collegamento con università, uffici e le principali arterie della città.

Contattaci per maggiori dettagli o per fissare una visita!
Un’opportunità rara in una delle zone più centrali e vivibili di Palermo.

Caratteristiche principali
Codice:
V000104
Città:
Palermo (Notarbartolo)
Categoria:
Appartamento
Spese condominiali:
1.200 € / anno
Locali:
4
Camere:
3
Bagni:
2
Mq:
123
Balconi:
2
Mq Balcone:
15
Piano:
2
Anno ristrutturazione:
2023
Classe energetica:
E
Stato Immobile:
Ristrutturato
Grado:
Signorile
Posizione:
Centro
Lati Liberi:
2
Arredi:
Non Arredato
Tipo Soggiorno:
Doppio
Tipo Cucina:
A Vista
Riscaldamento:
Autonomo
Tipo Riscaldam.:
Caldaia
Tipo Impianto:
Radiatori
Fonte Energetica:
Metano
Acqua Calda:
Autonoma
Infissi:
PVC Doppio Vetro
Serramenti:
Buono
Pavim. Giorno:
Gres Porcellanato
Pavim. Notte:
Parquet
Pavim. Cucina:
Gres Porcellanato
Pavim. Bagno:
Ceramica
Accessori
Ascensore
Doppi Vetri
Fibra Ottica
Porta Blindata
Portineria/Custode
Ripostiglio
Mappa
Via Terrasanta, 73 - Palermo (PA)
Distanze
Posizione
Centro1 km
Parco pubblico300 m
Mezzi di trasporto
Fermata metro-bus-tram30 m
Stazione di servizio10 m
Altri servizi
Centro culturale50 m
Chiesa50 m
Farmacia50 m
Supermercato50 m
Planimetrie
Cookie preference